Zusammenhängende Großraumbüros in der Innenstadt | Ausbau nach Wunsch | Highspeed Internet
- 14,50€
- 14,50€ pro m²
- 14,50€
- 14,50€ pro m²
Details
Updated on January 8, 2026 at 10:58 am-
Immobilien-ID 414/E2
-
Preis 14,50€ / m²
-
Gesamtfläche des Objekts 236 m²
-
Baujahr 1988
-
Art der Immobilie Büroflächen
-
Eigenschaftenstatus Zu Vermieten
-
Nebenkosten Auf Anfrage
Beschreibung
Die moderne Büroimmobilie besticht durch ihren hochwertigen Empfangsbereich und die äußerst zentrale Citylage. Die einzelnen Etagen sind über einen Personenaufzug erschossen. Die maximal effizienten Grundrisse lassen sich variabel entsprechend dem Raumprofil des neuen Mieters verändern – Großraum als auch Zellenbüros lassen sich sich mühelos verwirklichen.
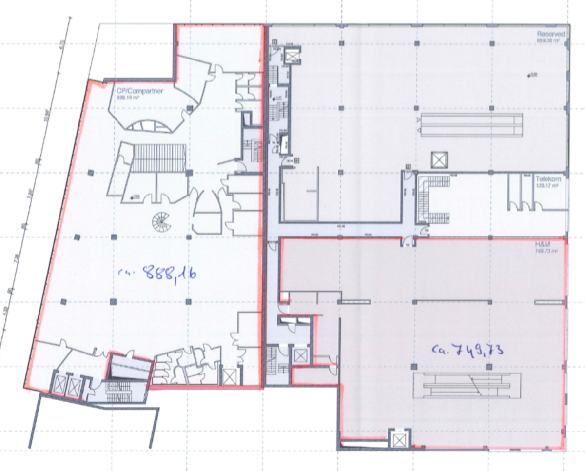
Folgende Flächen stehen zur Disposition:
1. OG 1.021,19 m² (zzgl. Dachterrasse + Innenhoffläche: ca. 75 m²)
2. OG 828,30 m²
Das Bürogebäude befindet sich im Citykern von Essen und in direkter Lage zur Essener Innenstadt. Das Gebäude profitiert von seiner Lage an der stark frequentierten Fußgängerzone. Der Limbecker Platz befindet sich nur ca. 5 Gehminuten entfernt. Durch die zentrale Lage, bietet das Objekt eine hervorragende ÖPVN Anbindung. Die A40 und die B224 ist innerhalb weniger Minuten zu erreichen.
Bedeutende Unternehmen in der Büromarktzone: Stadt Essen, Targo Bank, DB Schenker, Bistum Essen, National Bank
Hotels in der Umgebung: Motel One, Novum Hotel, Hotel Lindenhof, InterCity Hotel
• Bodenbelag: nach Mieterwunsch
• Klimatisierung: voll klimatisiert
• Verkabelung: CAT-7
• Kabelführung: Bodentanks
• Sonnenschutz: außenliegend, elektrisch
• Teeküche: voll ausgestattet
• Beleuchtung: Rasterdeckenleuchten
• Aufzug: Personenaufzug
• Sonstiges: Glasfaseranschluß vorhanden
Die Ausstattung kann kann bei Bedarf angepasst werden!
Es gelten ausschließlich unsere AGB (www.ruhr-real.de/agb). Wir möchten Sie darauf hinweisen, dass die Angaben ausschließlich auf den uns vom Eigentümer übermittelten Unterlagen und Informationen basieren. Für Richtigkeit und Vollständigkeit übernehmen wir keine Gewähr. Zwischenvermietung vorbehalten.
Adresse
Auf Google Maps öffnen-
Stadt: Essen
-
PLZ: 45127
-
Stadtteil: Stadtkern
-
Land: Deutschland






