568 m² Bürofläche mitten in der Stadtmitte auf einer Ebene! Stellplätze vorhanden | klimatisiert
- 9,95€
- 9,95€ pro m²
- 9,95€
- 9,95€ pro m²
Details
Updated on März 10, 2026 at 12:01 a.m.-
Immobilien-ID 268/E3
-
Preis 9,95€ / m²
-
Gesamtfläche des Objekts 568 m²
-
Baujahr 1910
-
Art der Immobilie Büroflächen
-
Eigenschaftenstatus Zu Vermieten
-
Nebenkosten Auf Anfrage
Beschreibung
Bei der Büroimmobilie handelt es sich um eine sehr auffällige, denkmalgeschützte Immobilie in bester City Lage von Essen. Der Hauptbahnhof ist vom Gebäude aus zu sehen! Die hochwertige Ausstattung und der repräsentative Eingangsbereich bieten optimale Voraussetzungen für eine moderne Bürogestaltung. Für den Nutzer stehen Parkplätze im Innenhof zur Anmietung zur Verfügung.
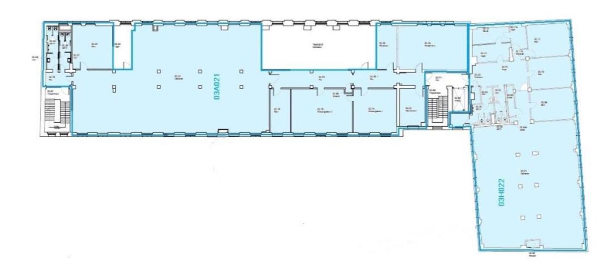
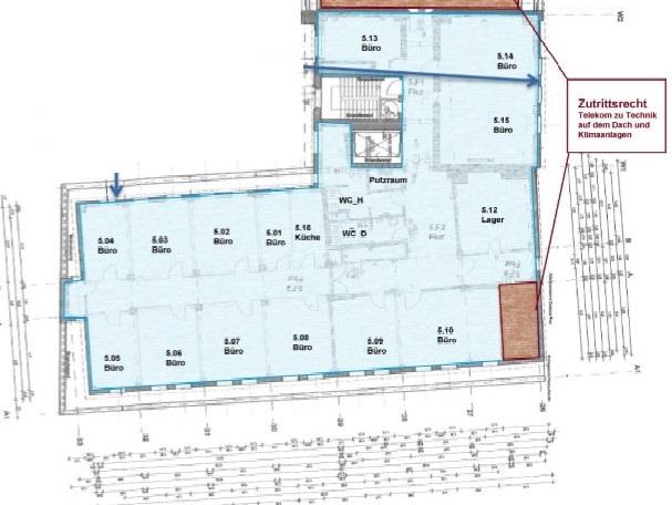
Folgende Flächen stehen zur Disposition:
1. OG: 469 m²
2. OG: 568 m²
5. OG: 466 m²
Das repräsentative denkmalgeschützte Objekt befindet sich direkt am Essener Hauptbahnhof ist bester Citylage. Die A40 und die A52 sind nur wenige Fahrminuten entfernt. Eine U-Bahn Haltestelle befindet sich direkt vor der Tür. Der Essener Hauptbahnhof, sowie die beliebte Innenstadt ist in weniger als einer Minute zu Fuß erreichbar. Hier finden Sie zahlreiche attraktive Einkaufsmöglichkeiten, sowie ein breites gastronomisches Angebot.
Bedeutende Unternehmen in der Büromarktzone: Commerzbank, DAK, Deutsche Post, Sparda Bank, Deutsche Bank
Hotels in der Umgebung: Intercity Hotel, Select Hotel, Center Hotel, Motel One, GHOTEL
• Bodenbelag: Teppichboden
• EDV-Verkabelung: CAT-5 vom Vormieter
• Kabelführung: Fensterbankkabelkanäle
• Sonnenschutz: innenliegend, manuell
• Teeküche: voll ausgestattet
• Beleuchtung: Rasterleuchten
• Klimatisierung: voll klimatisiert
• Aufzug: Personen- und Lastenaufzug
Die Ausstattung kann kann bei Bedarf angepasst werden!
Es gelten ausschließlich unsere AGB (www.ruhr-real.de/agb). Wir möchten Sie darauf hinweisen, dass die Angaben ausschließlich auf den uns vom Eigentümer übermittelten Unterlagen und Informationen basieren. Für Richtigkeit und Vollständigkeit übernehmen wir keine Gewähr. Zwischenvermietung vorbehalten.
Adresse
Auf Google Maps öffnen-
Stadt: Essen
-
PLZ: 45127
-
Stadtteil: Stadtkern
-
Land: Deutschland







