Freistehendes Bürohaus in hervorragender Lage | moderne Glaselemente | viele Stellplätze
- 15,00€
- 15,00€ pro m²
- 15,00€
- 15,00€ pro m²
Details
Updated on April 2, 2026 at 6:00 p.m.-
Immobilien-ID 556/E3
-
Preis 15,00€ / m²
-
Gesamtfläche des Objekts 1604 m²
-
Baujahr 2000
-
Art der Immobilie Büroflächen
-
Eigenschaftenstatus Zu Vermieten
-
Nebenkosten 4,50 € / m²
Beschreibung
Die repräsentative Büroimmobilie befindet sich im begehrten Essener Stadtteil Rüttenscheid. Alle Flächen sind über einen Personenaufzug sowie das Treppenhaus zu erreichen. Die gehobene Ausstattung bietet optimale Voraussetzungen für eine moderne und kreative Bürogestaltung. Die Anbindung an die Autobahn und den öffentlichen Nahverkehr ist hervorragend. Dem neuen Mieter stehen zahlreiche Stellplätze zur Anmietung bereit.
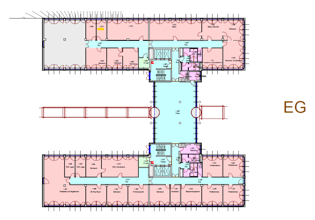
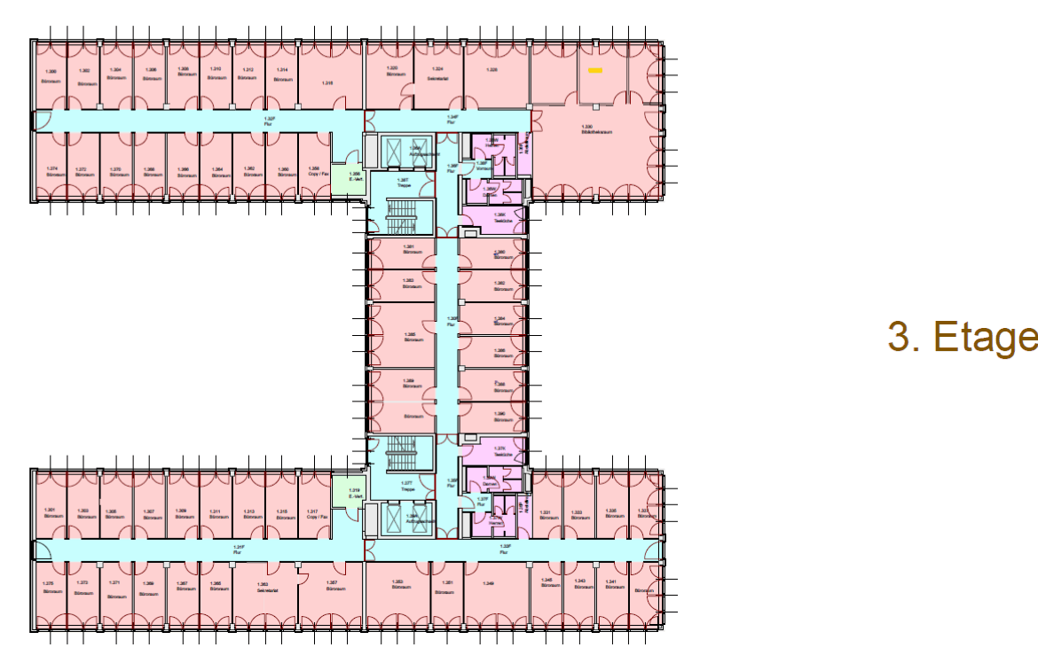
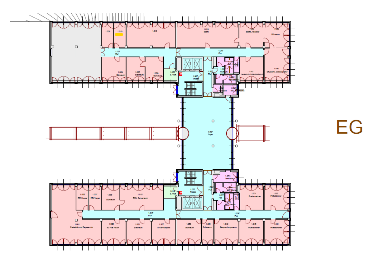
Folgende Flächen stehen aktuell zur Disposition:
EG: ca. 1.339 m²
1. OG: ca. 1.414 m²
2. OG: ca. 1.604 m²
3. OG: ca. 691 m²
Das Objekt befindet sich in der nachgefragtesten Büromarktzone in Essen-Rüttenscheid. Die Innenstadt sowie der Hauptbahnhof sind nur wenige Fahrminuten vom Objekt entfernt. Die bekannte Rüttenscheider Straße “Rü” ist fußläufig zu erreichen. Zahlreiche kleine Trend-Shops, Boutiquen, Straßencafés und die vielen kleinen Seitenstraßen verleihen der “Rü” ihren besonderen Charme. Die Autobahnen A40 und A52 liegen nur etwa fünf Fahrminuten entfernt. Den Flughafen Düsseldorf erreichen Sie in ca. 20 Minuten.
Bedeutende Unternehmen in der Büromarktzone: STEAG, 11880, PricewaterhouseCoopers, Ferrostaal
Hotels in der Nähe: Sheraton Hotel, Intercity Hotel, Mercure Hotel, ibis Hotel, Select Hotel Handelshof
• Bodenbelag: Teppichboden
• Sonnenschutz: außenliegend, elektrisch
• Beleuchtung: Rasterleuchten
• EDV-Verkabelung: USV Anlage/CAT-7 Verkabelung
• Teeküche: voll ausgestattet
• Aufzüge: 2 Personenaufzüge und 1 Lastenaufzug
Die Ausstattung kann bei Bedarf angepasst werden!
Es gelten ausschließlich unsere AGB (www.ruhr-real.de/agb). Wir möchten Sie darauf hinweisen, dass die Angaben ausschließlich auf den uns vom Eigentümer übermittelten Unterlagen und Informationen basieren. Für Richtigkeit und Vollständigkeit übernehmen wir keine Gewähr. Zwischenvermietung vorbehalten.
Adresse
Auf Google Maps öffnen-
Stadt: Essen
-
PLZ: 45128
-
Stadtteil: Südviertel
-
Land: Deutschland










